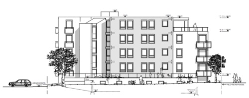
projekte - ansicht von nord - weiter

Technische Daten:
 
Mehr-Familienhaus mit Tiefgarage
Leinfelden-Echterdingen

Baubeginn: März 2012

Fertigstellung: Mai 2014 22 Wohnungen, 72 - 120 m² Wohnfläche
KFW 70 Gebäude mit Solarthermie und
Photovoltaik

Gesamtwohnfläche: 1930 m²
Umbauter Raum inkl. Tiefgarage: 9728 m³

Kunde: private Bauherrschaft

home | kontakt | projekte | referenzen